優勢:往復式給料機是利用曲柄連桿機構拖動下傾5°的底板在輥上做直線往復運動,從而把煤或其它磨琢性小,粘性不大的松散粒狀,粉狀物料從給料設備中均勻地卸到受料設備中。
往復式給料機產品概述:
往復式給料機是利用曲柄連桿機構拖動下傾5°的底板在輥上做直線往復運動,從而把煤或其它磨琢性小,粘性不大的松散粒狀,粉狀物料從給料設備中均勻地卸到受料設備中。
往復式給料機適用于礦山、礦井、選煤廠、中站、輸煤車間、港口散料碼頭等散料轉運,可將散料經料倉或直接進行均勻的轉載到膠帶機或其它篩選設備、貯存裝置等配合使用。實現對礦石、砂煤、糧食等散裝物料的均勻給料.本設備機體安裝于料斗下,傳動裝置為懸掛式,根據給料量的大小可分:K1、K2、K3、K4等幾種型號。
往復式給料機主要特點:
1.工作可靠、壽命長。
2.重量輕,體積小,維護保養方便。
3.結構簡單,運行可靠,調節安裝方便。
4.封閉式框架結構,大大提高了機架的剛度。
5.裝有限矩型液力偶合器,能滿載啟動,過載保護。
6.最大給料量可達1200噸/小時(煤),是目前國內最大的往復式給料機。
7.采用了先進的平面二次包絡環面騾桿減速器設計,承載能力大,傳動效率高。
8.側襯板、斜襯板與底板之間留縫可調,能比較準確地控制留縫大小,大大減少了漏料。
9.驅動裝置對稱布置,并采用雙推桿 ,使整機愛力均衡,傳動平穩,消除了底板往復時的扭擺現象。
10底板有立向筋板,并用三道通長托輥支承,保證了底板本身剛度,消除了現有往復式給料機底板工作中彎曲變形的弊病。
11.襯板由小塊耐磨鋼板拼成,這樣不僅更換時輕便容易,而且可以根據實際磨損情況,有針對性地更換磨損了的襯板塊,從而使材料合理利用 ,降低維修費用。
往復式給料機工作原理:
往復式給料機是由機架、底板(給料槽)傳動平臺、漏斗閘門、托輥等組成。其傳動原理:當電動機開動后,經彈性聯軸器、減速器、曲柄連軒機構拖動傾斜的底板在插輥上作直線往復運動,將煤均勻地卸到運輸機械或其它篩選設備上。該機設有帶漏斗、帶調節閥門和不帶漏斗、不帶調節閥門兩種形式。
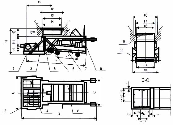
往復式給料機安裝示意圖:

往復式給料機主要外形尺寸:

說明:
1.K型往復式給料機有帶漏斗與不帶漏斗及帶調節閘門與不帶閘門組合成的多種型式,如帶漏斗,帶調節閘門;帶漏斗不帶調節閘門。
2.調調節閘門時,其給料量受調節閘門控制。
3.一般供貨時為普通電機,電壓380V,ZQ型減速機,如有特殊要求,需訂貨時說明,如用660電壓電機,防爆電機,其它型號減速機等。
往復式給料機技術參數表:

往復式給料機安裝及使用:
1.往復式給料機是固定安裝在儲料倉口下,在安裝前需要確定水平位置,將機架與倉口用螺栓緊固,然后再將傳動平臺安放在正確位置上,H形架與機架,傳動平臺焊牢,減速機、電動機找正安裝,調節適當,用螺栓緊固。
2.安裝后需要進行空負荷試車,運轉當中,檢查各部件工作是否正常,滾動軸承最高溫升不得高于60℃。
3.依據卸料要求調節生產率時,將曲柄部位銷軸拔出,松動螺母,轉動曲柄殼的位置“1、2、3、4”選擇固定,將銷軸插入,聯結曲柄與曲柄與曲柄殼,緊固銷軸和螺母,調整完畢后再開車。
客戶訂貨須知:
1.簽訂合同時請寫明型號規格、配何種電機、是否帶漏斗和調節閘門。
2.隨機技術文件:產品合格證、裝箱單、產品使用說明書。
K型往復式給料機日常檢修與維護:
1.給料機運行前,煤倉內應貯有足夠原煤量,以避免裝煤入倉時,直接沖擊底板(給煤板)。
2.每月連續工作后應檢查機件有無松動等不正常現象,若有不正常現象出現,應立即檢修。
3.給料機與煤直接接觸的底襯板,其厚度磨損程度大于原厚度的二分之一必須進行修補或更換。
4.轉動部件在連續工作六個月后,需檢查一次,拉桿部分的機件必須保持正常配合,如有不正常現象,立即修復或更換。
5.對主要部件的維護:
a、減速機:每六個月檢查一次,同時對滾動軸承和箱體進行清洗或更換潤滑油。
b、電動機:按電動機規定的檢修養護要求進行.